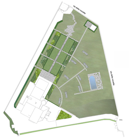
ROME GARDEN

 

Rome, Italy

by bekaa

client: private

3.600 m²

completed 2009