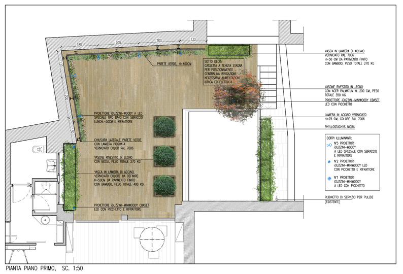
VERTICAL GARDEN

 

Milan, Italy

by bekaa

client: Technogym Building S.r.l.

70 mq

completed 2010